Les Néfliers
26 habitations dont 9 maisons

Lieu
ZAC du Verger, Carquefou (44)
MO
La Nantaise d'Habitations
Surface
1 896 m²
Équipe
urbanmakers, Campo, IBA, Solab, Itac, Cabinet Rousseau
Budget
3,5 M€ HT
Statut
Livré en 2025
Crédit Photos
Juan Cardona

Un écho au grand paysage

Ecrire l’histoire urbaine contemporaine de la ville : une ville plus dense mais toujours équilibrée. Particulièrement conscients de cette responsabilité, nous nous sommes interrogés sur la signification de cette nouvelle densité, sur la nécessité de conserver le caractère naturel et bucolique qui fait l’attrait évident des lieux, sur l’image valorisante de ce jalon qui conduit au centre-ville.
Nous avons fait le choix d’une architecture calme, presque furtive dans cette nature très présente qui participe à l’identité de Carquefou.

D’une personnalité contemporaine, le nouvel ensemble cherche à tisser une relation avec son environnement : son architecture de bois cherche l’écho direct avec la nature qui l’entoure. Ses teintes, ses finitions rugueuses, ses légères variations évoquent celles des troncs des arbres qui avoisinent le site.

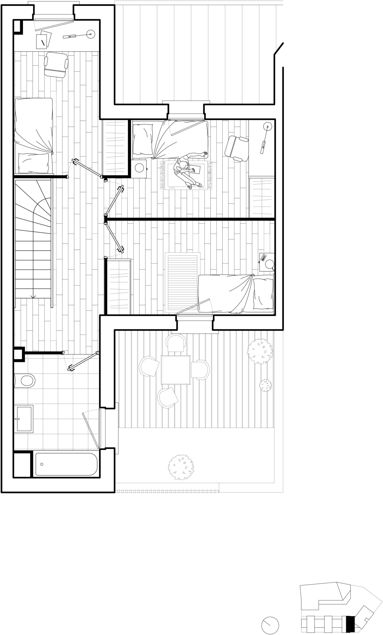
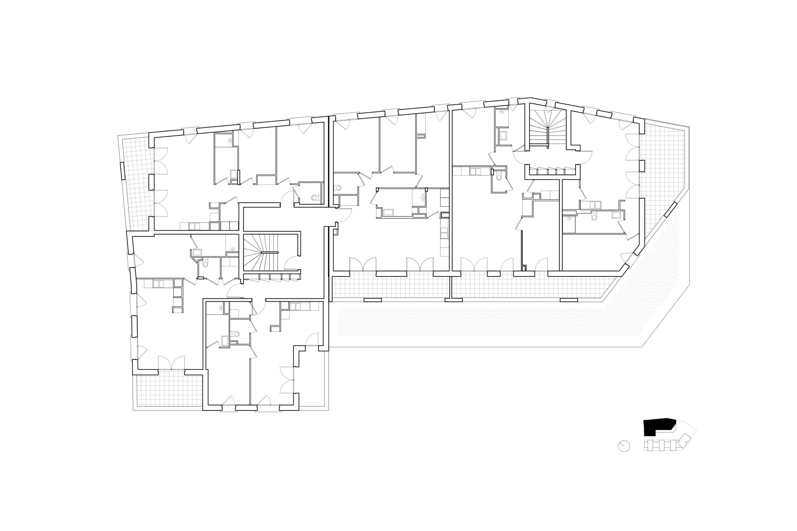
Le projet compose avec l’apparente contradiction d’une partie sud du site, c’est-à-dire bien exposée au soleil, mais qui signifie aussi les nuisances de la route départementale. Cette ligne crénelée du premier plan, les maisons, fait office de protection pour le reste des logements d’îlot. Ces dernières ne sont pas pour autant dépourvues de qualité : la contrainte est ici retournée en qualité, au profit de loggias centrales autour des quelles s’organisent les pièces de vie.
Du point de vue de la silhouette générale, le crénelage des étages génère des perméabilités, il fait entrer le ciel, il permet aussi aux autres habitants des logements collectifs d’obtenir des vues lointaines sur ce beau paysage en direction du sud.

Protégé du bruit de roulement de la route, le cœur d’îlot fonctionne de façon relativement introvertie : nous l’avons pensé comme le théâtre d’un quotidien épanoui, où le « vivre ensemble » trouve une signification communautaire.

→ Lire la suite
+ de projets

Le Coudray

Restructuration et extension d'un groupe scolaire
Nantes (44)

Garennes de Pilleux

Réhabilitation de 176 habitations
Nantes (44)

Madeleine café

Aménagement d'un coffee shop
Nantes (44)