PFK
Création d’un ensemble tertiaire : accueil, showroom et bureaux,

Lieu
Saint-Augustin-des-Bois (49)
MO
PFK
Surface
1 300 m² SP
Budget
2.3 M€ HT
Système constructif
Charpente mixte bois métal / FOB / Bardage bois
Certifications et labels
RE2020 niveau 2028
Statut
Livré en 2025
Crédit photos
Juliette Alexandre

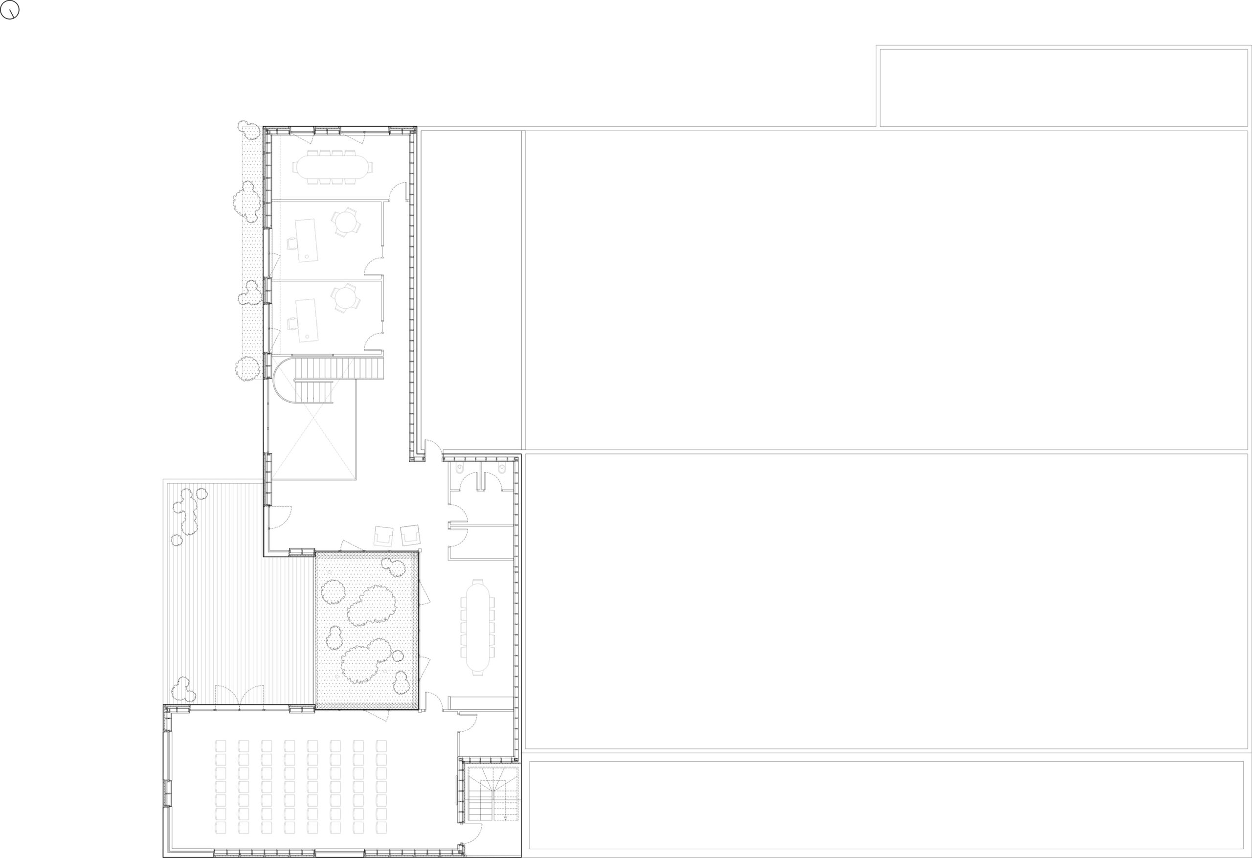
Métiers du bois

Ce projet est l’histoire de rencontres : celle d’un client des métiers du bois avec son architecte, d’ambitions constructives qui poussent les savoir-faire, du grain des matières et de la lumière. L’architecture affirme ici son engagement de durabilité.
Le bois y occupe une place centrale : charpente, planchers et enveloppe (solivage, FOB, isolation, plafonds, bardage, agencements). La sobriété des formes dévoile par contraste la générosité des percements qui percutent un bardage teinté noir. Au coeur, le patio est un jardin de fraîcheur : en tout point, les regards convergent vers cette qui organise les circulations.
Cadrées, les fenêtres ouvrent des vues en large sur la campagne angevine.

→ Lire la suite
+ de projets

Tour Bretagne

Restructuration de la Tour Bretagne
Nantes (44)

Bel&Co

Construction de 41 habitations, commerces et activités
Nantes (44)

Bords de Loire

Construction de 19 habitations
île de Nantes (44)